3. Kerület – Aranyhegy – Újépítésű 3 lakásos Társasház
A körbenapozott, panorámás, saját kertkapcsolattal rendelkező lakások a 3.kerületi Aranyhegyen, csendes, nyugodt, hasonló új építésű házakkal körülvett helyen találhatóak.
A közelben a csillaghegyi strand és fürdő, sport és bevásárlási lehetőségek, játszóterek. Könnyen megközelíthető tömegközlekedéssel is, Aranyvölgy vasútállomás 5 perc autóval.
A jelenleg még építés alatt álló ingatlanban a vevő választhatja ki a burkolatokat, valamint a belső elosztás is változtatható, bizonyos keretek között.
1 lakás
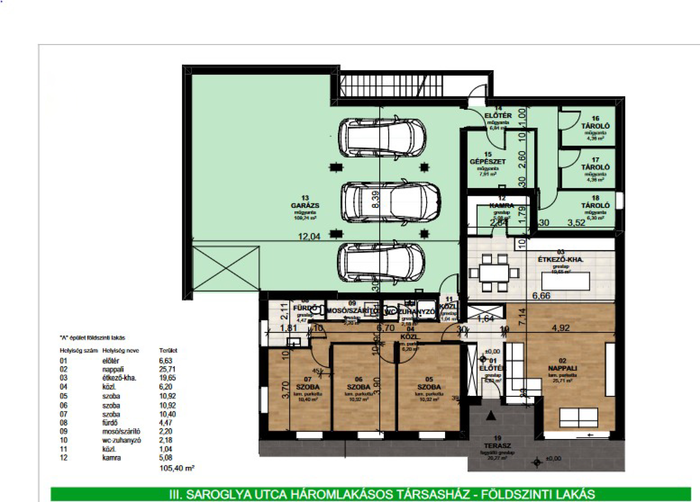
Földszinten 105,40 nm lakótér : nappali-étkező-konyha + 3 szoba + fürdő + Zuhanyzó-Wc + mosó-szárító + kamra
1 teremgarázs hely, 4 nm tároló, 20 nm terasz, saját kertkapcsolat
Ár: 169.816.900 Ft
2 lakás ELKELT!
Emeleten 60,39 nm lakótér : nappali-étkező-konyha + 1 szoba + fürdő + gardrób
1 teremgarázs hely, 4 nm tároló, 10 nm terasz, saját kertkapcsolat
Ár: 104.845.000 Ft 3 lakás
Emeleten 96,29 nm lakótér : nappali-étkező-konyha + 2 szoba + dolgozó + fürdő + Zuhanyzó-Wc + kamra
1 teremgarázs hely, 6 nm tároló, 18 nm terasz, saját kertkapcsolat
Ár: 173.117.050 FtFőbb műszaki paraméterek:
– 30 cm vasalt monolit földfelszín alatti teherhordó falazat
– 44cm NF vázkerámia földfelszín feletti teherhordó falazat
– monolit betonfödém
– Lakások közötti elválasztó teherhordófal – 30 cm Silka vagy vele egyező hanggátló tényezőjű hanggátló téglából
– padló fűtés levegő-víz hőszivattyúval
– háromrétegű nyílászárók
– Kling szekcionált garázsajtó motoros mozgatással
– Grohe szaniterek
– Legrand Niloé típus kapcsoló család
– terepszintek kialakítása, kerti csap
– okos otthon kialakítása plusz költség fejében kérhető
– háromrétegű nyílászárók
– Kling szekcionált garázsajtó motoros mozgatással
– Grohe szaniterek
– Legrand Niloé típus kapcsoló család
– terepszintek kialakítása, kerti csap
– okos otthon kialakítása plusz költség fejében kérhető
Műszaki leírást teljes kivitelezési tartalommal, kérésre email-ben küldök.
Ezeket is érdemes megnézni
Eladó családi ház Budakalászon – Hangulatos, felújított ház természetközeli környezetben!
2024.10.23.
Világos, belső udvarra néző Rózsa utcai minigarzon -ELKELT!-
2024.02.08.









